La boutique
Accès direct :
La boutique en photos
- Accès à la seconde pièce
- première pièce de la boutique et acès à la seconde pièce
- première pièce à gauche
- première pièce à droite et banque
- première pièce à gauche
- porte et vitrine accès rue
- deuxième pièce
- deuxième pièce
- accès à la première pièce
- deuxième pièce
- deuxième pièce
- deuxième pièce
L’emplacement
Adresse : 4, place de l’hôtel de ville 13100 Aix en Provence
De part sa situation centrale, le quartier de la mairie est toujours très animé et le marché a lieu sur la place de l’hôtel de ville les mardi, jeudi et samedi attirant ainsi beaucoup de monde.
3 parkings publics à proximité permettent de se garer facilement :
Cardeurs, les Thermes, Pasteur
La large et haute devanture est une invitation à entrer…
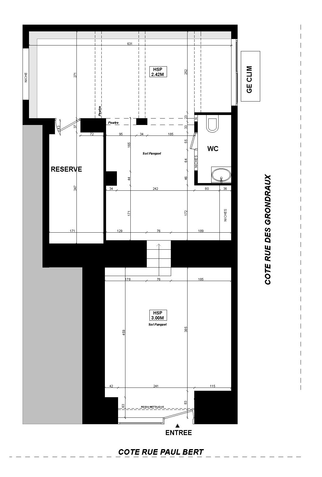
Superficie totale : 60 m2
Vitrine : 1,40m de large – Porte d’entrée : 0,98m de large
Hauteur totale de 3m.
La boutique est composée de deux pièces : une de 24 m2 et une de 30m2.
LE PLAN DE LA BOUTIQUE

Son atout ?
Composée de deux pièces communicantes, cette boutique peut être aménagée en plusieurs ambiances….
Facilement aménageable, la neutralité et la modernité de cette boutique vous permettront de laisser libre cours à votre créativité pour mettre en scène votre évènement éphémère !
- Parquet en chêne massif au sol
- Murs de couleur ivoire et tapisserie pour une atmosphère élégante, douce et chaleureuse.
- Réserve de 6 m2
- Toilettes et lavabo
- Magasin sous vidéosurveillance factice dissuasive
- Enceintes et caisson de basse Bose
- Climatiseur convertible chaud et froid
- Un éclairage réfléchi permet de mettre en valeur vos présentations.
- L’éclairage a été entièrement rénové en LED : éclairage plafond avec spots directionnels et éclairages étagères et vitrine
- Système de sécurité :
- vitre SECURITE SP 10 anti effraction
Le descriptif du mobilier à votre disposition
- Comptoir blanc finition bois chêne L120 x P50 x H100, 1 tiroir caisse, compartiments de rangements
- Mobilier innovant, épuré et modulable selon vos besoins. Il se compose de panneaux muraux blanc mat et d’étagères blanc mat, blanc brillant et chêne.
- 1 grand miroir mural
- Cimaises
- 1 fauteuil Bertoia
- 1console en chêne
- 1 table basse
1 micro onde
1 réfrigérateur
Les Supports de votre communication
- En vitrine extérieure : affichage sur la vitrine
- Possibilité de marquer votre enseigne en lettre électrostatique sur la vitrine (non adhésive) *
- * Cette option est à votre charge.
13 136 vues












